本次為公司辦公室裝修設計方案,辦公室設計面積800平方,設計師在辦公室設計中,以靈動、簡約、自然、童趣為設計原則,目的就是希望打造一個多元化的辦公客戶。
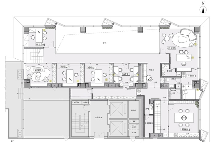
▼公司辦公室平面圖

▼公司辦公室平面圖

▼公司辦公室前臺

▼公司辦公室接待區(qū)

▼公司辦公室接待區(qū)

▼公司辦公室交流區(qū)

▼公司辦公室交流區(qū)

▼公司辦公室辦公區(qū)

▼公司辦公室裝飾

▼公司辦公室洽談區(qū)

▼公司辦公室休息區(qū)

▼公司辦公室休息區(qū)

▼公司辦公室會議室

▼辦公室二層辦公區(qū)

▼公司總經(jīng)理辦公室

▼公司總經(jīng)理辦公室

▼公司總經(jīng)理辦公室

▼公司總經(jīng)理辦公室

▼公司總經(jīng)理辦公室

▼公司辦公室衛(wèi)生間

本次公司辦公室裝修設計方案講解到此結束,設計師在辦公室設計中,以靈動、簡約、自然、童趣為設計原則,目的就是希望打造一個多元化的辦公客戶。
裝修風格 | 裝修攻略 | 深化設計 | 關于嵐禾 | 免責聲明 | 嵐禾保障 | 工裝網(wǎng) | 中式辦公室裝修 | 廠房辦公室裝修 | 辦公室裝修效果圖 | 金融辦公室裝修 | 教育培訓機構裝修 | 科技辦公室裝修 | 公司辦公室裝修 | 辦公室裝修設計 | 民宿設計 | 聯(lián)系嵐禾
地址:杭州市西湖區(qū) 中國美術學院風景建筑設計研究總院(西斗門路) 20號 5B 郵編:310000 業(yè)務咨詢:0571-88091570 傳真:0571-88091570 E-mail: 1467724601@qq.com
杭州工裝裝修公司:m.dayingpimao.com.cn