本次為杭州鴻世電器辦公樓設計方案,辦公室設計主旨是充分滿足使用要求,以人為本規劃合理的動線,體現現代、專業、高效、科技辦公環境空間。
▼設計思路

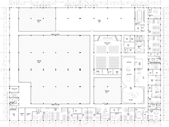
▼辦公樓3F平面圖

▼辦公樓4F平面圖

▼辦公樓東外立面

▼辦公樓南外立面

▼接待大廳意向圖


▼接待室意向圖

▼辦公室意向圖


▼小會議室意向圖

▼大會議室意向圖

▼培訓室意向圖

▼報告廳意向圖

▼領導辦公室意向圖

▼展廳意向圖


設計師在辦公室設計中,依據設計任務書,對各功能空間進行分析,結合企業品牌和文化以及空間特質,各空間按照私密性進行空間布局。
案例推薦
>>>杭州鴻世電器辦公樓效果圖